Capannone in vendita

San Mauro Pascoli, Via del Progresso - San Mauro A Mare
€ 750.000
3 locali 3 locali
780 Mq 780 Mq
1 bagno 1 bagno

Capannone in vendita

San Mauro Pascoli, Via del Progresso - San Mauro A Mare

Descrizione annuncio

SAN MAURO MARE

Proponiamo in vendita a San Mauro fraz. Mare, nella zona artigianale di via del Progresso, capannone artigianale attrezzato per produzione alimentare.

L’immobile è strutturato nel seguente modo:

.Piano terra di 750 mq dotato di un piccolo ufficio, spogliatoio M/F, e laboratorio artigianale comprensivo di zona lavaggio e deposito.

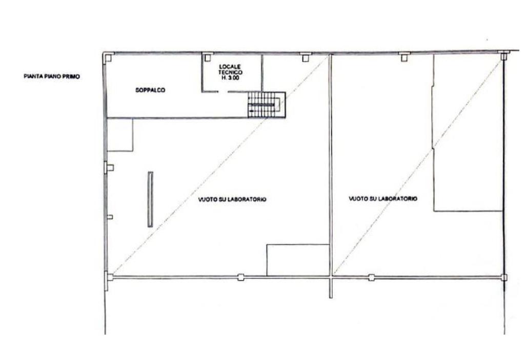
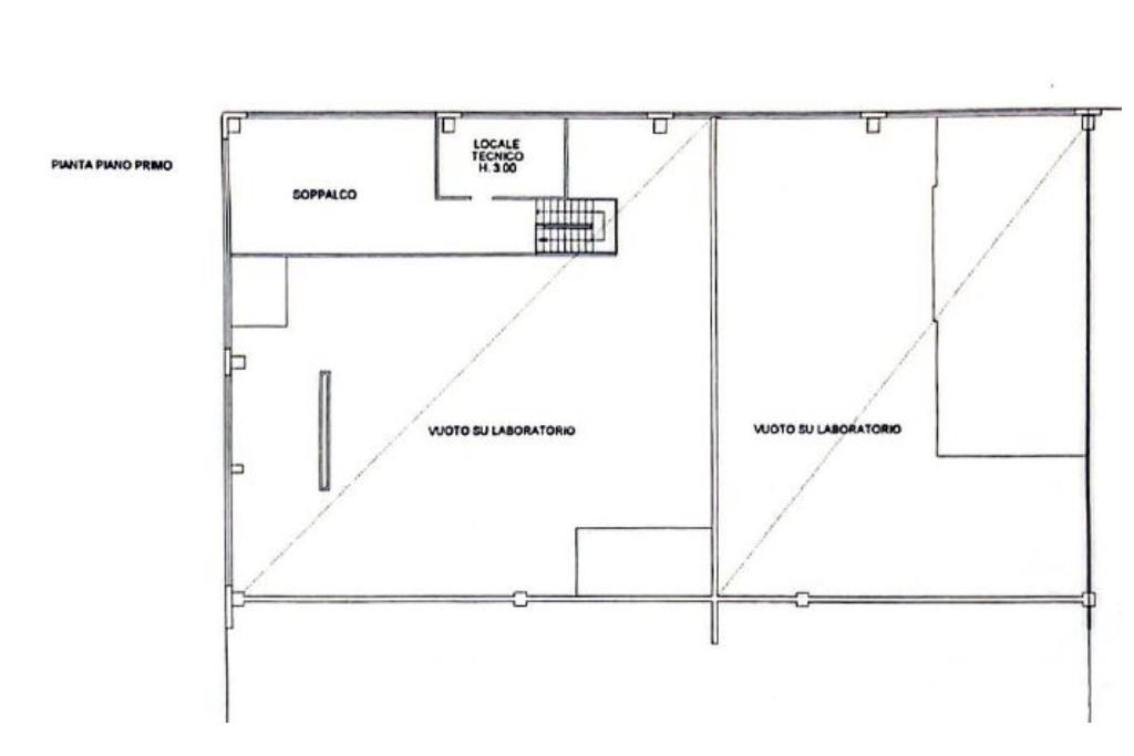
.Al primo piano soppalco;

.All’esterno corte esclusiva libera su un lato con accesso facile per bilici e mezzi di grandi dimensioni.

Il capannone è dotato di tutte le attrezzature (elenco dei cespiti riportato in seguito) e superfici lavabili ideali per lavorazioni alimentari.

Per informazioni e visite contatta il 366.302.5769 oppure il 0541.454488

Mostra tutto

Nelle vicinanze

Trasporto pubblico Trasporto pubblico
Gatteo a Mare
Gatteo a Mare
2,0 Km
stazione di Bellaria
stazione di Bellaria
2,3 Km
Bus Stop EX GEO
Bus Stop EX GEO
960 m
Bus Stop Via Marina - Via Ravenna
Bus Stop Via Marina - Via Ravenna
970 m
Ricariche auto elettriche Ricariche auto elettriche
Centro Commerciale Romagna Est Iper
640 m
Hotel Capitol
2,3 Km
Hotel Mon Pays Bellaria
2,5 Km
Scuole Scuole
Scuole
1,5 Km
Polo Scolastico Villamarina
2,5 Km
Scuola Elementare Ferrarin
2,8 Km
Farmacia Farmacia
Iper Farma
810 m
Farmacia Centrale
1,6 Km
Farmacia Tonini
2,1 Km
Farmacia
2,3 Km
ParaFarmacia
2,4 Km
Supermercati Supermercati
Iper
790 m
D-piu
1,0 Km
Supermercati
1,0 Km
Conad City
1,6 Km
Svelto A&O
1,7 Km
Negozi Negozi
Poseidonia
1,6 Km
Conad
1,6 Km
Ollipois
1,7 Km
Creme Caramel
1,7 Km
Bottega Balducci
2,0 Km
Bar Bar
Bar
1,5 Km
Tequila
1,7 Km
Bar Mercedes
1,8 Km
Bar Delfino
2,0 Km
Bagno Walter
2,1 Km
Ristoranti Ristoranti
Risto'
700 m
Ristorante Da Marco
940 m
Ristorante Pizzeria Oasi
1,3 Km
Il Caminetto
1,4 Km
IL Capanno
1,4 Km
Mostra tutto

Caratteristiche

Rif.:
61136216
Piano:
2 di 2 (Piano su più livelli)
Condizionamento:
Assente
Ascensore:
No
Riscaldamento:
Autonomo
Giardino:
Privato
Mostra tutto
Prezzo Prezzo
€ 750.000
Rata mutuo Rata mutuo
€ 3.534 / mese
Spese annue Spese annue
€ 0
Proponi il tuo prezzoProponi il tuo prezzo

Altre caratteristiche

Descrizione dei locali
Bagno Cieco

Classe Energetica

Questo immobile è esente da classe energetica
Anno di costruzione:
2005
Riscaldamento:
Autonomo
Tipo impianto:
A pavimento
Tipo alimentazione:
Gasolio

Ti interessa visionare l'immobile?

Fissa un appuntamento  Fissa un appuntamento

Richiedi informazioni

Clicca su Leggi per aprire l'informativa
* Questi campi sono obbligatori

Calcola il tuo mutuo

Semplice e senza impegno
Anticipo

( % )
Mutuo

( % )

pochi semplici passi

inserisci i tuoi dati
Questionario completato
Grazie per aver richiesto un appuntamento senza impegno con un nostro Consulente del Credito e Assicurativo.

Hai inserito correttamente tutti i dati necessari e a breve riceverai una e-mail con un link da convalidare per inviare i tuoi dati.
Affiliato
Studio Rosae Srl
Via Enrico Mattei, 47 47039 Savignano Sul Rubicone (FC)

Il nostro staff


  • Claudia Coppari
    Affiliata

  • Alberto Bambara
    Collaboratore

  • Lisa Morri
    Coordinatrice

  • Davide Perazzini
    Affiliato

  • Alberto Valloni
    Collaboratore
Via Enrico Mattei, 47 47039 Savignano Sul Rubicone (FC)
Zona: Savignano s.R.-San Mauro P.-Gatteo-Gambettola-Longiano-Cesenatico-Bellaria-Igea Marina-Santarcangelo
Mostra su mappa
Orari: Lun - ven 9,00 - 13,00; 15,00 - 19,00. Sab 9,00 - 12,30
Affiliato
Studio Rosae Srl
Via Enrico Mattei, 47 47039 Savignano Sul Rubicone (FC)

2026 Tecnocasa Franchising S.p.A. - P. IVA 08365160152 - Via Monte Bianco 60/A 20089 Rozzano (MI). Ogni agenzia ha un proprio titolare ed è autonoma. Privacy policy | Policy utilizzo | Cookie policy