Ufficio in affitto

Gambettola, Piazza Sandro Pertini
€ 650 / mese
2 locali 2 locali
44 Mq 44 Mq
1 bagno 1 bagno

Ufficio in affitto

Gambettola, Piazza Sandro Pertini

Descrizione annuncio

GAMBETTOLA

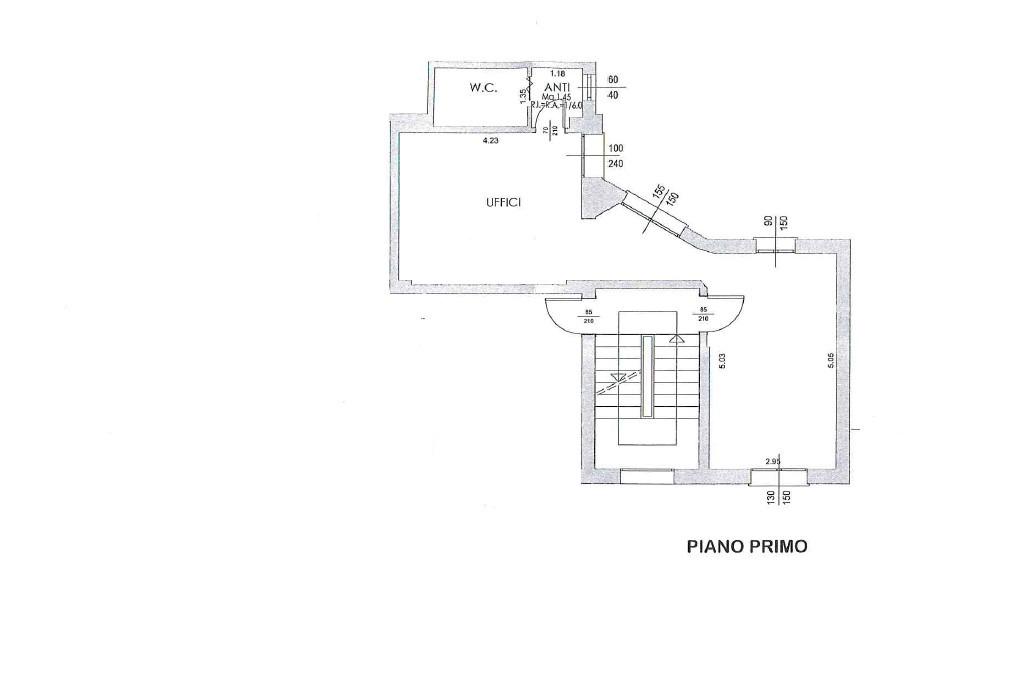
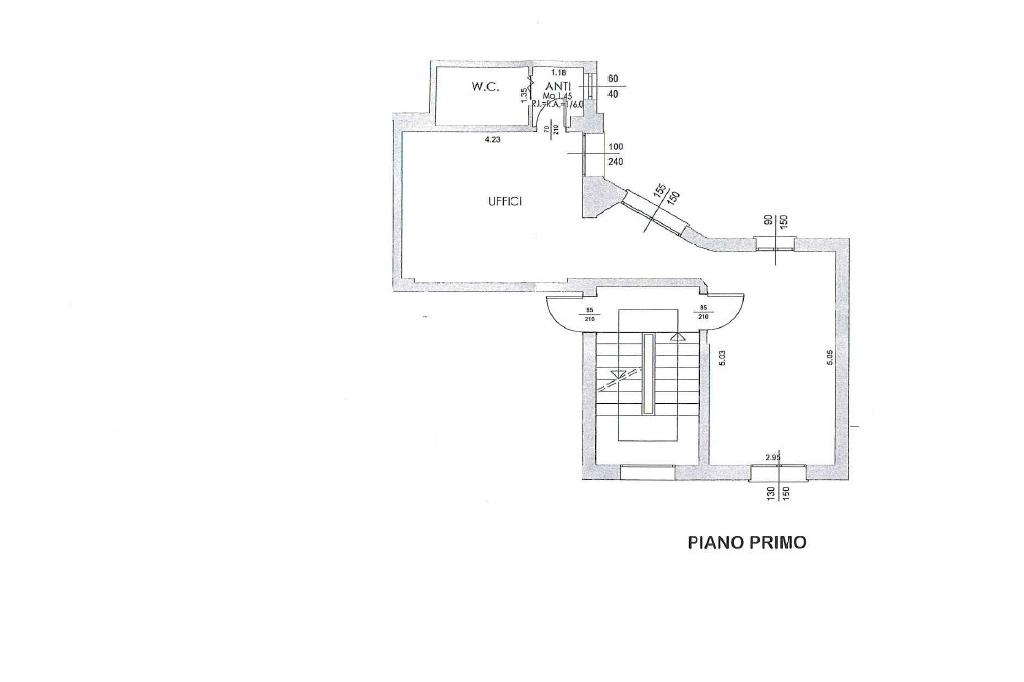
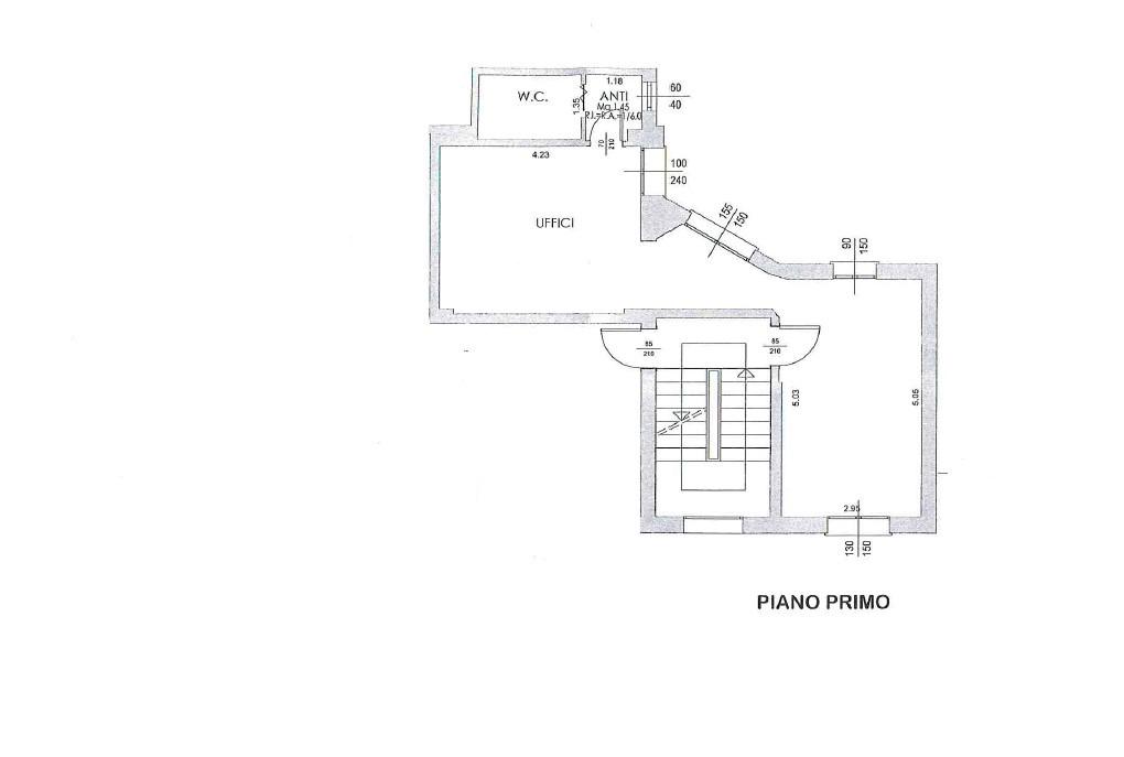
Proponiamo in locazione un ufficio di 44 mq, situato al primo piano.

L'immobile è stato ristrutturato nel 2025, garantendo così un ambiente moderno e funzionale.

L'ufficio, accessibile tramite scale, è composto da due locali ed un bagno con doccia.

L'immobile è dotato di impianto di riscaldamento e aria condizionata. L'ufficio dispone inoltre di tapparelle elettriche, allarme e porta blindata.

La posizione centrale offre facile accesso ai principali servizi e trasporti pubblici, rendendolo una scelta strategica per chi desidera operare in un contesto dinamico.

La ristrutturazione in corso prevede l'adeguamento degli impianti e l'ottimizzazione degli spazi, assicurando comfort e praticità.

Questo ufficio rappresenta un'opportunità interessante per chi cerca una soluzione versatile e ben collegata nel comune di Gambettola.

Le stanze arredate sono state prodotte con intelligenza artificiale.

Per maggiori informazioni contatta il numero dell'ufficio 0541.454488 o manda una mail all'indirizzo

Mostra tutto

Nelle vicinanze

Trasporto pubblico Trasporto pubblico
stazione di Gambettola
stazione di Gambettola
880 m
Buozzi
Buozzi
170 m
Ricariche auto elettriche Ricariche auto elettriche
BeCharge Gambettola Kennedy
390 m
BeCharge Famila Gambettola
410 m
BeCharge Gambettola Lavoro
1,1 Km
Carrozzerie e Officine F.lli Battistini | EnelX
2,6 Km
Scuole Scuole
Istituto Comprensivo Scuola dell'Infanzia Gambettola
290 m
Scuola Materna Rodari
590 m
I.C. Longiano -Balignano
2,8 Km
Farmacia Farmacia
Farmacia Pascucci
240 m
Farmacia Ponte Ospedaletto
1,9 Km
Ospedali Ospedali
Città della salute
350 m
Supermercati Supermercati
Famila
470 m
A&O
980 m
Bar Bar
Bar Bosco Verde
390 m
Smile
2,3 Km
Ristoranti Ristoranti
Ristoranti
70 m
Mostra tutto

Caratteristiche

Rif.:
61119125
Piano:
1 di 2 (Piano medio)
Condizionamento:
Autonomo
Ascensore:
No
Riscaldamento:
Autonomo
Libero:
No
Mostra tutto
Prezzo Prezzo
€ 650 / mese
Spese annue Spese annue
€ 0

Altre caratteristiche

Descrizione dei locali
Bagno Cieco

Classe Energetica

A1
A1
A1
A1
A1
A1
A1
A1
A1
EP invernale del fabbricato:
EP estiva del fabbricato:
Anno di costruzione:
1960
Riscaldamento:
Autonomo
Tipo impianto:
Ad aria
Tipo alimentazione:
Altro

Ti interessa visionare l'immobile?

Fissa un appuntamento  Fissa un appuntamento

Richiedi informazioni

Clicca su Leggi per aprire l'informativa
* Questi campi sono obbligatori
Affiliato
Studio Rosae Srl
Via Enrico Mattei, 47 47039 Savignano Sul Rubicone (FC)

Il nostro staff


  • Claudia Coppari
    Affiliata

  • Alberto Bambara
    Collaboratore

  • Lisa Morri
    Coordinatrice

  • Davide Perazzini
    Affiliato

  • Alberto Valloni
    Collaboratore
Via Enrico Mattei, 47 47039 Savignano Sul Rubicone (FC)
Zona: Savignano s.R.-San Mauro P.-Gatteo-Gambettola-Longiano-Cesenatico-Bellaria-Igea Marina-Santarcangelo
Mostra su mappa
Orari: Lun - ven 9,00 - 13,00; 15,00 - 19,00. Sab 9,00 - 12,30
Affiliato
Studio Rosae Srl
Via Enrico Mattei, 47 47039 Savignano Sul Rubicone (FC)

2026 Tecnocasa Franchising S.p.A. - P. IVA 08365160152 - Via Monte Bianco 60/A 20089 Rozzano (MI). Ogni agenzia ha un proprio titolare ed è autonoma. Privacy policy | Policy utilizzo | Cookie policy